Suites and Floor Plans
Studio One Bedroom One Bedroom + Den Two Bedrooms
Studio Unit
Studio — 346 sq ft
A bright, efficient studio that makes every inch count. Thoughtful zoning gives you room to cook, relax, sleep, and work—plus a private deck for fresh air.
Highlights
- Defined living/sleeping layout with a built-in desk nook for work or study
- Efficient kitchen with range, double sink, and clever storage
- Full bathroom (approx. 6'-6" × 8'-10") with adjacent linen storage
- In-suite W/D for everyday convenience
- Tall wardrobe for streamlined storage
- Private deck (approx. 5'-11" × 6'-9")—perfect for morning coffee
At-a-Glance
- Type: Studio
- Interior: 346 sq ft (approx.)
- Outdoor: Deck 5'-11" × 6'-9" (approx.)
- Laundry: In-suite washer/dryer
- Workspace: Built-in desk
Note: Dimensions, layouts, and furniture placements are approximate and subject to change.

Text
One Bedroom Unit
1-Bedroom — 530 sq ft
A roomy one-bedroom with a full Laundry room that provides extra storage, an open L-shape kitchen with dishwasher, and a covered deck that extends your living space. The queen-ready bedroom includes a generous closet.
Highlights
- Enclosed Laundry Room (5'-7" × 7'-4") — ideal for storage
- L-Shaped kitchen, DW, full-size fridge, and great prep space
- Spacious bedroom (12'-1" × 8'-5") with double closet
- Open living/dining for easy entertaining
- Full bath with tub/shower combo
- Private covered deck (7'11" × 6'-9") off the living room
At-a-Glance
- Type: 1 Bedroom
- Interior: 534 sq ft (approx.)
- Outdoor: Deck 7-11" × 6'-9" (approx.)
- Laundry: In-suite W/D
- Kitchen: Dishwasher
Plans, dimensions, and furniture placements are approximate and subject to change.

One Bedroom + Den Units
Floor Plan 1 Floor Plan 2
One Bedroom + Den Plan 1
1-Bedroom + Den — 597 sq ft
Smart, flexible layout with an open living/kitchen hub, a true work-from-home den, and a private deck off the living room. The bedroom fits a queen bed comfortably, and the plan adds everyday ease with in-suite laundry and a linen closet.
Highlights
- Separate den (8'-11" × 5'-10") — ideal office, hobby nook, or extra storage
- Queen-sized bedroom (approx. 9'11" × 9'-9") with convenient bath access
- Open living/dining with a defined dining zone and TV wall
- Efficient kitchen with L-shaped counter, dishwasher (DW) and full-size fridge (F)
- In-suite W/D and linen closet by the bath
- Private deck (9'-6" × 6'-7") for morning coffee or evening unwind
- Full bathroom (approx. 9'-0" × 8'-1")
At-a-Glance
- Type: 1 Bedroom + Den
- Interior: 597 sq ft (approx.)
- Outdoor: Deck 9'-6" × 6'-7"
- Laundry: In-suite W/D
- Kitchen: Dishwasher & full-size fridge
Note: Floor plan, dimensions, and furniture placements are approximate and subject to change.

One Bedroom + Den Plan 2
1-Bedroom + Den — 672 sq ft
A roomy one-bedroom plus den with In suite Laundry, an open concept kitchen with large kitchen island and dishwasher, and a covered deck that extends your living space. The queen-ready bedroom includes a generous closet.
Highlights
- Den (8'-6" × 6'-10") — ideal for storage or office
- Kitchen with Island, DW, full-size fridge, and great prep space
- Spacious bedroom (12'-2" × 10'-5") with double closet
- Open living/dining for easy entertaining
- Full bath with tub/shower combo
- Private covered deck (11'11" × 6'-7") off the living room
At-a-Glance
- Type: 1 Bedroom + Den
- Interior: 672 sq ft (approx.)
- Outdoor: Deck 11-11" × 6'-7" (approx.)
- Laundry: In-suite W/D
- Kitchen: Dishwasher
Plans, dimensions, and furniture placements are approximate and subject to change.

Two Bedroom Units
Floor Plan 1 Floor Plan 2
Two Bedroom Plan 1
2-Bedroom — 753 sq ft
Bright, efficient two-bedroom with an open living/dining hub, two full baths, and a large private deck off the living room. The split-bedroom layout adds privacy—great for roommates, small families, or a work-from-home setup.
Highlights
- Island kitchen with seating, dishwasher (DW) and full-size fridge (F)
- Two bathrooms: one with tub, one with shower
- Primary bedroom (approx. 12'-10" × 9'-0") fits a queen
- Second bedroom (approx. 7'-9" × 10'-4")—ideal for a twin bed or office
- In-suite laundry with oversized closet/laundry room (8'-4" × 5'-4") and linen storage
- Spacious deck (approx. 8'-1" × 12'-1") extends your living space
- Defined dining area and comfortable living room for easy entertaining
At-a-Glance
- Type: 2 Bedroom / 2 Bath
- Interior: 753 sq ft (approx.)
- Outdoor: Deck 8'-5" × 12'-0" (approx.)
- Laundry: In-suite W/D
- Kitchen: Island + Dishwasher
Note: Dimensions, layouts, and furniture placements are approximate and subject to change.

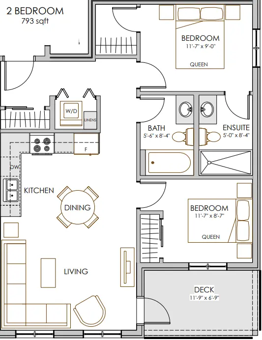
Two Bedroom Plan 2
2-Bedroom — 793 sq ft
Bright, well-planned two-bedroom with an open kitchen/dining/living area and two full baths, including a private ensuite. Both bedrooms fit a queen bed, and the living room opens to a covered deck for outdoor lounging.
Highlights
- Queen-sized bedrooms on opposite sides for privacy
- Two bathrooms: main bath with tub + ensuite with shower
- Open L-shaped kitchen with full-size appliances, dishwasher, and adjacent dining area
- In-suite washer/dryer plus linen closet
- Covered deck (approx. 11'-9" × 6'-9") off the living room
- Efficient layout with great flow and storage
At-a-Glance
- Type: 2 Bedroom / 2 Bath
- Interior: 793 sq ft (approx.)
- Outdoor: Private deck
- Laundry: In-suite W/D





































